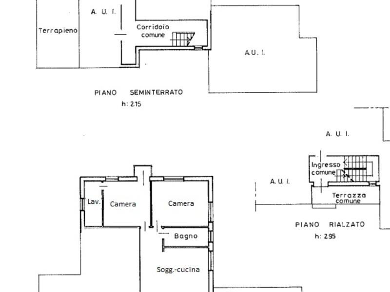
Scopri il tuo nuovo rifugio nel cuore di Bassano del Grappa! Questo splendido appartamento trilocale, con una superficie di ben 95 mq, è la scelta perfetta. Situato in una zona tranquilla ma centrale, l'immobile offre facile accesso a tutti i servizi essenziali: scuole, negozi e mezzi pubblici sono a pochi passi.La proprietà si distingue per le sue ampie stanze luminose che creano un'atmosfera accogliente e rilassata. All'ingresso ti accoglie un soggiorno spazioso che si apre su una cucina abitabile completamente attrezzata; insieme formano uno spazio ideale per momenti conviviali con famiglia ed amici. Le due camere da letto offrono tranquillità e privacy, mentre il bagno si presenta luminoso e con buoni spazi.Completa la proprietà una cantina e un garage singolo.Non lasciarti sfuggire quest'ottima opportunità!LE VISITE SARANNO FISSATE SOLO DOPO UN COLLOQUIO INFORMATIVO PRESSO LA NOSTRA AGENZIA
Dettaglio Immobile
Appartamento trilocale a Bassano del Grappa
398
Bassano del Grappa - Bassano Del Grappa- Appartamento
- Vendita
- 95 m2
- 3 Locali
- 1 Bagni
- APE:
IPE: 108.16 kWh/m2anno
Scopri il tuo nuovo rifugio nel cuore di Bassano del Grappa! Questo splendido appartamento trilocale, con una superficie di ben 95 mq, è la scelta perfetta. Situato in una zona tranquilla ma centrale, l'immobile offre facile accesso a tutti i servizi essenziali: scuole, negozi e mezzi pubblici sono a pochi passi.La proprietà si distingue per le sue ampie stanze luminose che creano un'atmosfera accogliente e rilassata. All'ingresso ti accoglie un soggiorno spazioso che si apre su una cucina abitabile completamente attrezzata; insieme formano uno spazio ideale per momenti conviviali con famiglia ed amici. Le due camere da letto offrono tranquillità e privacy, mentre il bagno si presenta luminoso e con buoni spazi.Completa la proprietà una cantina e un garage singolo.Non lasciarti sfuggire quest'ottima opportunità!LE VISITE SARANNO FISSATE SOLO DOPO UN COLLOQUIO INFORMATIVO PRESSO LA NOSTRA AGENZIA
Maggiori Informazioni
Invia un'email a .





















IPE: 68.00 kWh/m2anno
IPE: 95.00 kWh/m2anno